浦东这里将新建一所小学,来看详情 2024-10-14 来源:浦东新区人民政府
浦东惠南民乐大居旁将新建一所小学,满足当地居民子女就近入学的需求,一起来看。
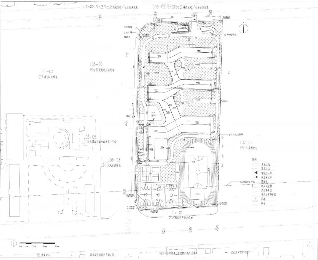
工程名称
上海市浦东新区
民乐大型居住社区L07-03地块
建设单位
上海中建申拓投资发展有限公司
项目地址
浦东新区惠南镇
用地范围
东至L07-02地块
南至L07-01地块
西至听谐路
北至拱亮路
用地性质
基础教育设施用地(Rs4)
建设内容
本项目包含1栋小学综合楼,1栋门卫及消控室,1栋配电房,1栋垃圾房,1个地下车库。
公示图

主要经济技术指标
用地面积:26645.48平方米
总建筑面积:24585.69平方米
容积率:0.76
建筑密度:25.19%
绿地率:35.01%
效果图


意见反馈
公示采取网上和现场同步公示的方式。
公示时间:2024年10月9日-18日
反馈意见截止日期:2024年10月25日,信件以寄出邮戳为准。
本次公示采取书面信函方式或电子邮件听取公众意见,反馈意见的信函请寄:浦东新区锦安东路475号新区规资局,邮编:201204,电子邮件地址:pudongguihua@163.com,请在信函封面或邮件名称上注明“上海市浦东新区民乐大型居住社区L07-03地块方案公示意见”。也可到项目所在镇反映。
分享: